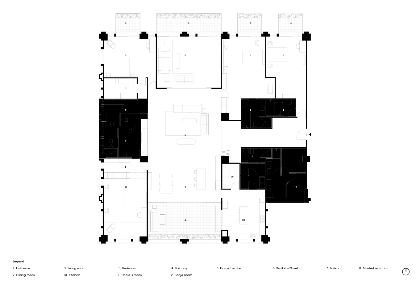
The project, located in Bangalore, required the studio to curate the interiors for a private residence. The family comprised a couple living with their elderly mother. An interaction with the family early in the design process revealed their admiration for intricate details and processes. They established their inclination for spaces and objects with emotional depth, rather than visual opulence. The apartment overlooked a lake, a key factor in the family's decision to choose this particular unit. As a response, the house was approached from the outside. The method was to articulate each opening such that the interiors availed a larger share of the outside. This act seems effortless when performed in a stand-alone residence, but within the context of existing structural and civil elements, the process proved challenging. Each threshold, furniture piece, the materiality, as well as the colours, were then viewed through this lens of keeping the house open. The studio maintained this intent while selecting each of the furniture pieces. Hence, designs with clean lines, which were able to adhere to the function without creating much visual disturbance was added. The soft, subtle colour palette underlines the structured lines of the various furniture pieces and architecture, while highlighting the works of art. The house was thereby an exercise in weaving a new expression within the design style compendium. While, by personality, the users exhibit a very minimalist lifestyle, this minimalism has a distinctly Indian connotation to it. refers to as contemporary minimalism. A minimalism that is not devoid of pieces, like its international counterpart, but with distinctly Indian hues that match its local temperament.










